Questa piccola casa con giardino sorge sulle rive del Golfo di Morbihan, a pochi chilometri da Auray, nella Britannia Meridionale.
L’edificio, progettato dall’architetto francese Patrice Bideau, specializzato nella progettazione di case bioclimatiche, utilizza i principi di architettura organica volte ad abbattere i consumi e a creare un’indipendenza energetica.
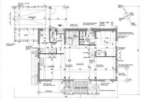
La casa è situata in una regione battuta dall’instabile clima oceanico. Il progetto è partito dal giardino, progettato per fornire una protezione dai venti di ponente e dotato di un orto nella zona più assolata. Qui sorge anche una piscina naturale, la cui acqua viene tenuta pulita in modo naturale, senza prodotti chimici.
Per abbatere i consumi, la casa presenta poche aperture nella facciata esposta a nord e le sue pareti in cemento a vista sono perfettamente coibentate e rivestite con un telaio in legno. Di fronte alla piscina, un pergolato di glicine crea un legame tra la cucina, la terrazza e un giardino d’inverno dalla struttura in legno che serve per prolungare la casa all’esterno.
La combinazione di tutti questi elementi ecologici hanno contribuito all’eliminazione del riscaldamento tradizionale e la sua sostituzione con un sistema di riscaldamento di supporto costituito da una stufa a bassi consumi e ad altissime prestazioni energetiche.











